Σαραπιείον: Όταν οι Αιγύπτιοι θεοί λατρεύονταν στη Θεσσαλονίκη

Αθέατο σήμερα, καθώς ελάχιστα κατάλοιπά του σώζονται κάτω από το οδόστρωμα της οδού Καραολή και Δημητρίου, το ιερό εξακολουθεί να κρατά μυστική την αύρα του θρησκευτικού μυστηριακού κόσμου που εκπροσωπούσε επί 600 περίπου χρόνια

Κάνε κλικ και δες περισσότερο emakedonia.gr στην αναζήτηση της Google

Πρόσθεσέ το στην Google

- Newsroom

Μετά την καταστροφική πυρκαγιά του 1917, κατά τη διάνοιξη της «Διαγωνίου Βαρδαρίου» (πρώην Διοικητηρίου και σήμερα Καραολή και Δημητρίου των Κυπρίων Αγωνιστών), εντοπίζεται το 1921 μία επιγραφή και τμήματα του ιερού των Αιγυπτίων θεών, του αποκαλούμενου «Σαραπιείου» από τον πρώτο ανασκαφέα Στρατή Πελεκίδη.

Τα ακριβή όριά του δεν είναι γνωστά, όμως φαίνεται ότι καταλάμβανε μεγάλη έκταση μεταξύ των οδών Καραολή και Δημητρίου, Ελένης Σβορώνου, Σελευκιδών και Πτολεμαίων, σε μια προνομιακή θέση, κοντά στην κύρια δυτική πύλη και το λιμάνι, στο νότιο τμήμα μιας «ιερής περιοχής» (area sacra), όπου ήταν συγκεντρωμένα τα περισσότερα ιερά της Θεσσαλονίκης (εικ.1).

336741893-155444250756236-473069674978655552-n.jpg


 
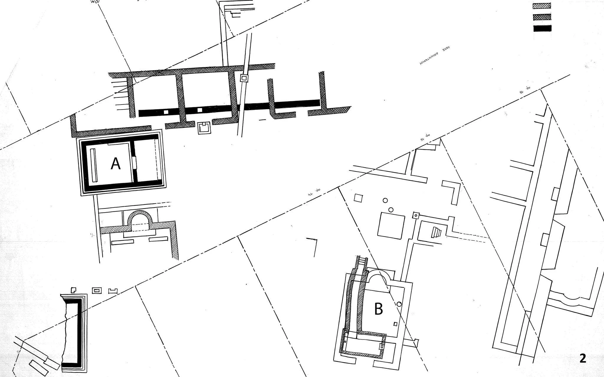
Το ιερό περιελάμβανε στωικά οικοδομήματα και μικρούς ναούς, μοιάζει δε με το πληρέστερα ερευνημένο ιερό της Ίσιδας στο Δίον. Στις έρευνες των πρώτων χρόνων αποκαλύφθηκαν τμήμα στοάς, τα θεμέλια ενός μικρού πρόστυλου ή δίστυλου εν παραστάσι ναού ορθογώνιας κάτοψης (ναός Α), με βοτσαλωτό δάπεδο, προσανατολισμό Α προς Δ και είσοδο στα ανατολικά και τμήματα άλλων δύο τουλάχιστον κτισμάτων (εικ. 2).

336753519-590780179608270-2776450080791916032-n.jpg



Επίσης, πολλά γλυπτά, λίγα αρχιτεκτονικά μέλη, νομίσματα, καθώς και πολλές επιγραφές, επιβεβαίωσαν ότι εδώ λατρεύονταν κυρίως οι δύο δημοφιλέστεροι θεοί του αιγυπτιακού πανθέου, η Ίσις και ο Σάραπις, αλλά και άλλοι Αιγύπτιοι θεοί, όπως ο Όσιρις, ο Αρποκράτης, ο Άνουβις, ο Άμμωνας Δίας, καθώς και θεοί του ελληνικού πανθέου, όπως ο Διόνυσος, ο Θεός Ύψιστος, η Αφροδίτη κ.ά.

Η κατασκευή του ναού χρονολογήθηκε στα ελληνιστικά χρόνια, ενώ δέχθηκε επισκευές στη ρωμαϊκή εποχή. Οι ανασκαφές επαναλήφθηκαν το 1939 από τον Σ. Πελεκίδη και τον Χ. Μακαρόνα στα ΝΑ του αρχαιολογικού χώρου, αποκαλύπτοντας έναν μικρό, πιθανώς πρόστυλο ή δίστυλο εν παραστάσι αψιδωτό ναό ρωμαϊκών χρόνων (ναός Β), με σηκό και πρόναο, προσανατολισμό Β προς Ν και μαρμαροθετημένο δάπεδο από μικρά ακανόνιστα πολύχρωμα πλακίδια (εικ. 2 και 3).

336691043-236425748903010-7066111191766852643-n.jpg



Στη βόρεια πλευρά του σηκού υπήρχε υπερυψωμένη ημικυκλική κόγχη, πιθανώς για το λατρευτικό άγαλμα, με κτιστό πλίνθινο έδρανο μπροστά της για την τοποθέτηση αναθημάτων.

Στη ΒΔ γωνία του μικρού αυτού ναού αποκαλύφθηκε υπόγειος καμαροσκεπής ορθογώνιος χώρος με άξονα Α προς Δ, προορισμένος προφανώς για λατρευτικούς σκοπούς, αφού σε κόγχη του ανατολικού τοίχου βρέθηκε στην αρχική της θέση πάνω σε μαρμάρινη βάση μικρή ερμαϊκή στήλη.

Στον χώρο αυτό οδηγούσε, μέσω μικρής κλίμακας, υπόγειος καμαροσκεπής επίσης διάδρομος, παράλληλος με τον δυτικό τοίχο του σηκού.

Δεν υπήρχε άμεση επικοινωνία των εσωτερικών χώρων του υπερκείμενου ναού με τους δύο υπόγειους χώρους, που χαρακτηρίζονται από τον Χ. Μακαρόνα ως «Κρύπτη», τόπος μυστηριακής λατρείας των Αιγυπτίων θεών, η είσοδος της οποίας βρέθηκε σφραγισμένη με μαρμάρινες πλάκες από την αρχαιότητα.

336671955-1598201567312971-6559723708245888893-n.jpg


Τα μόνα στοιχεία τεκμηρίωσης του κτίσματος είναι κυρίως δύο ανασκαφικές φωτογραφίες (εικ. 4), μια σύντομη περιγραφή από τον Χ. Μακαρόνα και ένα μικρό γύψινο πρόπλασμα του αψιδωτού ναού Β, που τον αναπαριστά στην κατάσταση που βρέθηκε, το οποίο εκτίθεται στο Αρχαιολογικό Μουσείο Θεσσαλονίκης (εικ. 5).
336687392-169422605518551-4150532476558805742-n.jpg


Η επόμενη ανασκαφή στην περιοχή έγινε το 1957, στη συμβολή των οδών Δημήτριου/Καραολή και Ε. Σβορώνου και αποκάλυψε τμήματα γλυπτών και επιγραφές.

Το «Σαραπιείον» της Θεσσαλονίκης είναι ένα από τα σημαντικότερα και παλαιότερα ιερά του είδους του στην ηπειρωτική Ελλάδα, το μεγαλύτερο μακεδονικό κέντρο λατρείας του κύκλου των Αιγυπτίων θεών, που διατηρούσε σχέσεις με αντίστοιχα ιερά και ανέπτυσσε «ιεραποστολική» δράση, όπως μαρτυρεί μια επιγραφή του, σχετική με τη μεταφορά της λατρείας του Σάραπι στον Οπούντα Λοκρίδος.

Η λειτουργία του ξεκινά από τα ελληνιστικά χρόνια, πιθανώς στην εποχή της ίδρυσης της Θεσσαλονίκης από τον Κάσσανδρο (316/315 π.Χ.), και εξακολουθεί να χρησιμοποιείται με επισκευές ως το τέλος της αρχαιότητας.

Στη Θεσσαλονίκη καθιερώθηκε η εξελληνισμένη εκδοχή της λατρείας των Αιγυπτίων θεοτήτων, στην οποία ελληνικά και αιγυπτιακά στοιχεία συναντώνται και συγχωνεύονται, με βασικό στοιχείο των δοξασιών τη λύτρωση στη μετά θάνατον ζωή και την αναζήτηση της ελπίδας για τη νίκη του φόβου του θανάτου.

Η λατρεία των Αιγυπτίων θεών ήταν ιδιαίτερα ζωντανή τον 1ο-3ο αι. μ.Χ., με οργανωμένους θρησκευτικούς συλλόγους, που συνέβαλαν στη διάδοσή της σε ευρύτερα κοινωνικά στρώματα.

Η σημασία του ιερού, εκτός από το πλήθος των γλυπτών, αναθηματικών ανάγλυφων κ.ά., προκύπτει και από τις 70 και πλέον επιγραφές, κυρίως στην ελληνική γλώσσα, που ανάγουν τη λατρεία των θεών αυτών σε μια από τις καλύτερα τεκμηριωμένες αρχαίες θρησκείες.

Το ιερό ίσως ιδρύθηκε με ιδιωτική πρωτοβουλία, αλλά η διαχείριση των εσόδων γινόταν με την επίβλεψη του βασιλιά ή της πολιτείας, δεν ήταν κλειστό στο κοινό και οι πομπές ήταν μέρος του εορτολογίου της πόλης.

Η παρουσία ενός «υδρείου» (κρηναία κατασκευή), που καταγράφεται σε αφιερωματική επιγραφή (37/36 π.Χ.) χωρίς να διευκρινίζεται η θέση του, δείχνει τη σημασία του νερού στις τελετουργίες και πιθανότατα στον εξαγνισμό των ιερέων.

Η λειτουργία του ιερού έπαυσε κάποια στιγμή πιθανότατα μέσα στον 4ο αι. μ.Χ., ενώ είναι αξιοσημείωτο ότι στους αιώνες που ακολούθησαν δεν ανεγέρθηκαν άλλα κτίρια στην περιοχή του.

Αθέατο σήμερα, καθώς ελάχιστα κατάλοιπά του σώζονται κάτω από το οδόστρωμα της οδού Καραολή και Δημητρίου, το ιερό εξακολουθεί να κρατά μυστική την αύρα του θρησκευτικού μυστηριακού κόσμου που εκπροσωπούσε επί 600 περίπου χρόνια.

Πηγή: Εφορεία Αρχαιοτήτων Πόλης Θεσσαλονίκης

Κάνε κλικ και δες περισσότερο emakedonia.gr στην αναζήτηση της Google

Πρόσθεσέ το στην Google
Loader
ESPA