Δήμος Δέλτα: Σε 12 μήνες η ολοκλήρωση του βρεφονηπιακού σταθμού της Χαλάστρας - Δείτε τα σχέδια

Υπογράφηκε η σύμβαση για την κατασκευή του

- Newsroom

Η Δήμαρχος Δέλτα Γερακίνα Μπισμπινά υπέγραψε την σύμβαση για την κατασκευή του βρεφονηπιακού σταθμού της Χαλάστρας, δίνοντας λύση σε ένα χρόνιο και μεγάλο πρόβλημα της τοπικής κοινωνίας.

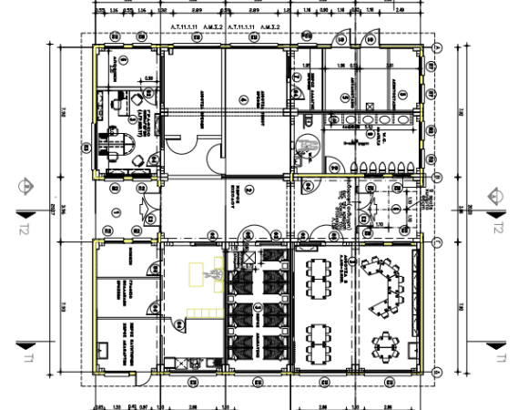
Ο νέος βρεφονηπιακός σταθμός της Χαλάστρας ο οποίος προβλέπεται να έχει αποπερατωθεί εντός 12 μηνών από την υπογραφή της σύμβασης, θα διαθέτει μεταξύ άλλων αίθουσα ύπνου βρεφών, χώρο ανάπαυσης νηπίων, δύο αίθουσες νηπίων, μια αίθουσα βρεφών, γραφείο νηπιαγωγών και γραφείο πολλαπλών χρήσεων και φυσικά όλες τις απαραίτητες υποδομές που θα εξασφαλίζουν λειτουργικότητα(χώρο πλυντηρίων κτλ.) και άνεση του χώρου.

Η Δήμαρχος Δέλτα Γερακίνα Μπισμπινά σημείωσε αμέσως μετά την υπογραφή της σύμβασης ότι: «Νιώθω χαρά και μεγάλη ικανοποίηση που σήμερα υπογράψαμε την για την κατασκευή του νέου βρεφονηπιακού σταθμού στη Χαλάστρα. Πρόκειται για ένα έργο ζωτικής σημασίας, που ανταποκρίνεται στις αυξανόμενες ανάγκες των οικογενειών της περιοχής και διασφαλίζει ένα σύγχρονο, ασφαλές και λειτουργικό περιβάλλον για τη φιλοξενία των παιδιών μας.

Ο νέος βρεφονηπιακός σταθμός θα διαθέτει σύγχρονες υποδομές, τηρώντας όλες τις προδιαγραφές για την ασφαλή και ποιοτική εκπαίδευση και φροντίδα των παιδιών. Με τέτοιες πράξεις στηρίζουμε έμπρακτα την κοινωνία μας, δίνουμε λύσεις σε χρόνια προβλήματα και παράλληλα στηρίζουμε την οικογένεια.

Θέλω να ευχαριστήσω όλους όσοι συνέβαλαν στην υλοποίηση αυτού του σημαντικού έργου, άλλωστε ο δήμος έχει συνέχεια και αυτό δεν πρέπει να το λησμονούμε. Εμείς από την πλευρά μας δεσμευόμαστε να συνεχίσουμε να εργαζόμαστε με συνέπεια για την αναβάθμιση των υποδομών και τη βελτίωση της ποιότητας ζωής στην περιοχή μας».

Από πλευρά του ο Αντιδήμαρχος Τεχνικών Υπηρεσιών και Αντιδήμαρχος Δημοτικής Ενότητας Χαλάστρας, Δημήτρης Καμανάς, δήλωσε: «Πρόκειται για ένα για ένα πάγιο αίτημα των κατοίκων της κοινότητας Χαλάστρας, η οποία για χρόνια στερήθηκε της ύπαρξης ενός δημοτικού βρεφονηπιακού σταθμού. Η έλλειψη αυτή δημιουργούσε σημαντικά προβλήματα στις οικογένειες της περιοχής, οι οποίες έπρεπε να αναζητήσουν λύσεις εκτός Χαλάστρας. Πολύ σύντομα, όμως, η κατάσταση αυτή θα αλλάξει, χάρη στις γρήγορες και αποτελεσματικές ενέργειες της δημοτικής αρχής, η οποία προχώρησε άμεσα στη συμβασιοποίηση του έργου. Πολύ σύντομα λοιπόν, οι γονείς θα έχουν στη διάθεσή τους μια σύγχρονη και ασφαλή δομή για τη φροντίδα και την εκπαίδευση των παιδιών τους, ικανοποιώντας μια διαχρονική ανάγκη της τοπικής κοινωνίας».

Loader
ESPA