Δ. Πυλαίας-Χορτιάτη: Νέα πνοή στα Κωνσταντινοπολίτικα - Ξεκινά η κατασκευή της πλατείας Οικουμενικού Πατριαρχείου

«Έπεσαν οι υπογραφές» - Μια νέα βιοκλιματική πλατεία δίπλα στον Ιερό Ναό Αγίας Γλυκερίας με χρηματοδότηση ΕΣΠΑ

- Newsroom

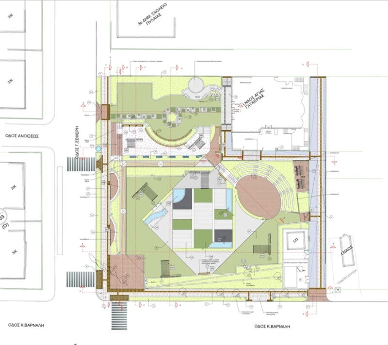
Την υλοποίηση ενός σημαντικού έργου αστικής ανάπλασης ξεκινά ο Δήμος Πυλαίας - Χορτιάτημετατρέποντας τον Συνοικισμό Κωνσταντινουπολιτών σε ένα νέο ζωντανό δημόσιο χώρο. Η υπογραφή της σύμβασης για την κατασκευή της πλατείας Οικουμενικού Πατριαρχείου, δίπλα στον Ιερό Ναό Αγίας Γλυκερίας, σηματοδοτεί ένα ακόμα βήμα στην προσπάθεια της διοίκησης να αναβαθμίσει την καθημερινότητα των κατοίκων μέσα από σύγχρονες, φιλικές και πράσινες υποδομές.

Το έργο χαρακτηρίζεται ως έργο πνοής, συνδυάζοντας βιοκλιματικό σχεδιασμό και αισθητική αναβάθμιση. Η χρηματοδότηση προέρχεται από πόρους του ΕΣΠΑ 2021-2027, μέσω του Προγράμματος Δημοσίων Επενδύσεων (ΠΔΕ), τους οποίους ο Δήμος εξασφάλισε μέσω στοχευμένων ενεργειών και συστηματικής διεκδίκησης. Η πρωτοβουλία αυτή ενισχύει έμπρακτα τις υποδομές και την ποιότητα ζωής των πολιτών.

kontsantinoupolitika-plateia-oikoymenikou-patriarxeiou2.jpg

Η νέα πλατεία σχεδιάζεται ως ένας σύγχρονος, ανοιχτός και λειτουργικός δημόσιος χώρος, με έμφαση στο πράσινο, την προσβασιμότητα και τη βιώσιμη ανάπτυξη, φιλοδοξώντας να αποτελέσει σημείο συνάντησης για μικρούς και μεγάλους. Το έργο αποσκοπεί στην ανάδειξη της πλατείας ως ολοκληρωμένου χώρου για συνάθροιση κοινού, πράσινο, ημερήσια αναψυχή και μικρής κλίμακας εκδηλώσεις, με διαμορφωμένες προσβάσεις φιλικές στους χρήστες.

Η ανάπλαση εντάσσεται στο πλαίσιο του ολοκληρωμένου σχεδιασμού των κεντρικών κοινόχρηστων χώρων της Πολεοδομικής Ενότητας 4 της Πυλαίας, με στόχο:

  • την αύξηση των επιφανειών πρασίνου (δέντρα και φυτεύσεις),
  • την ενίσχυση της διαπερατότητας των εδαφών,
  • τη βελτίωση του μικροκλίματος και του αστικού περιβάλλοντος.

Πρόκειται για την τρίτη μεγάλη ανάπλαση στην Πυλαία, μετά το Ελαιόρεμα και τη Δελφών, αναδεικνύοντας τόσο τον συνολικό σχεδιασμό όσο και το έμπρακτο ενδιαφέρον του Δήμου για την περιοχή. Η συνολική διάρκεια υλοποίησης του έργου προβλέπεται σε 18 μήνες.

kontsantinoupolitika-plateia-oikoymenikou-patriarxeiou3.jpg

Ο Δήμαρχος Ιγνάτιος Καϊτεζίδης τόνισε:

«Σήμερα κάνουμε πράξη μια ακόμη δέσμευσή μας! Σε λίγους μήνες προσφέρουμε στους συμπολίτες μας έναν ακόμα σύγχρονο, πανέμορφο και λειτουργικό δημόσιο χώρο. Με σχέδιο και συστηματική διεκδίκηση αξιοποιήσαμε στο έπακρο τους πόρους του ΕΣΠΑ 2021-2027 και του ΠΔΕ, μετατρέποντας τα χρηματοδοτικά εργαλεία σε έργα ουσίας που αναβαθμίζουν την καθημερινότητα όλων μας. Η νέα πλατεία, πέριξ του Ι.Ν. Αγίας Γλυκερίας στα Κωνσταντινοπολίτικα, φέρει την ονομασία του Οικουμενικού Πατριαρχείου, «σφραγίζοντας» την ταυτότητα της περιοχής. Συνεχίζουμε να εργαζόμαστε με συνέπεια, ομορφαίνοντας τις γειτονιές μας και χτίζοντας τον Δήμο που μας αξίζει. Να είναι καλορίζικη!»

Ο Δήμαρχος ευχαρίστησε παράλληλα την Περιφερειάρχη Αθηνά Αηδόν και τον Αντιπεριφερειάρχη Κώστα Γιουτίκα για την άριστη συνεργασία στην προετοιμασία και χρηματοδότηση του έργου.

Loader
ESPA