Χαλκιδική: Πορεία Μνήμης στα Νέα Μουδανιά για την Ποντιακή Γενοκτονία
Το πρόγραμμα των εκδηλώσεων
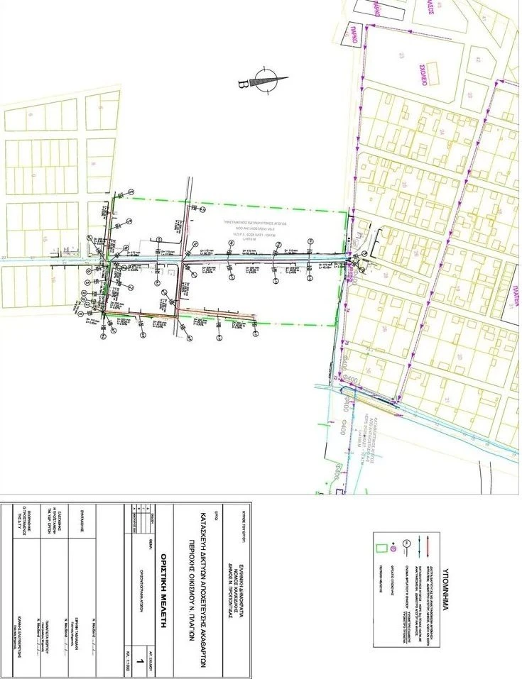
H ολική προθεσμία του έργου έχει καθοριστεί σε εννέα μήνες από την ημέρα υπογραφής της σύμβασης
Κάνε κλικ και δες περισσότερο emakedonia.gr στην αναζήτηση της Google
Πρόσθεσέ το στην Google- Newsroom
Υπεγράφη από τον Δήμαρχο Μ. Καρρά και την ανάδοχο εταιρεία ”ΑΞΙΟΝ ΤΕΧΝΙΚΗ ΑΕ” η σύμβαση για την εκτέλεση του έργου: “Κατασκευή Δικτύων Αποχέτευσης Ακαθάρτων Περιοχής Οικισμού Ν. Πλαγίων”, προϋπολογισμού μελέτης 264.000,00€.
Το έργο έχει ενταχθεί στο ΕΠΙΧΕΙΡΗΣΙΑΚΟ ΠΡΟΓΡΑΜΜΑ “ΥΠΟΔΟΜΕΣ ΜΕΤΑΦΟΡΩΝ, ΠΕΡΙΒΑΛΛΟΝ ΚΑΙ ΑΕΙΦΟΡΟΣ ΑΝΑΠΤΥΞΗ 2014-2020” ΑΞΟΝΑ ΠΡΟΤΕΡΑΙΟΤΗΤΑΣ «ΔΙΑΤΗΡΗΣΗ ΚΑΙ ΠΡΟΣΤΑΣΙΑ ΤΟΥ ΠΕΡΙΒΑΛΛΟΝΤΟΣ - ΔΙΑΧΕΙΡΙΣΗ ΥΓΡΩΝ ΚΑΙ ΣΤΕΡΕΩΝ ΑΠΟΒΛΗΤΩΝ (ΕΤΠΑ) στο πλαίσιο της Πράξης «ΣΥΛΛΟΓΗ,ΜΕΤΑΦΟΡΑ, ΚΑΙ ΕΠΕΞΕΡΓΑΣΙΑ ΛΥΜΑΤΩΝ Δ.Κ. ΝΕΑΣ ΤΡΙΓΛΙΑΣ ΚΑΙ Τ.Κ. ΝΕΩΝ ΠΛΑΓΙΩΝ ΤΟΥ ΔΗΜΟΥ ΝΕΑΣ ΠΡΟΠΟΝΤΙΔΑΣ» με βάση την απόφαση ένταξης με αρ. πρωτ. 4689/1-6-2020 της Ειδικής Γραμματέας Διαχείρισης Τομεακών Προγραμμάτων ΕΤΠΑ, ΤΑ και ΕΚΤ και έχει λάβει κωδικό MIS (ΟΠΣ): 5003714.
Το έργο συγχρηματοδοτείται από το Ευρωπαϊκό Ταμείο Περιφερειακής Ανάπτυξης (Ε.Τ.Π.Α.). η ολική προθεσμία του έργου έχει καθοριστεί σε εννέα (9) μήνες από την ημέρα υπογραφής της σύμβασης.
Το έργο περιλαμβάνει το δίκτυο αποχέτευσης σε τμήμα περίπου 33 στρεμμάτων μεταξύ του ορεινού και του παραλιακού οικισμού των Ν. Πλαγίων, τα εσωτερικά δίκτυα δηλαδή ακαθάρτων ελεύθερης ροής συνολικού μήκους περίπου 650 μ., τη συγκέντρωσή τους στο τελικό φρεάτιο συγκέντρωσης, καθώς και τη μεταφορά τους με τη χρησιμοποίηση καταθλιπτικού αγωγού, ο οποίος διαβιβάζει τα λύματα στο υφιστάμενο φρεάτιο πέρατος. Επίσης, περιλαμβάνονται τα απαιτούμενα προκατασκευασμένα κυκλικά φρεάτια επίσκεψης αγωγών ακαθάρτων από σκυρόδεμα, καθώς και οι αντίστοιχες διακλαδώσεις του δικτύου ακαθάρτων.
Κάνε κλικ και δες περισσότερο emakedonia.gr στην αναζήτηση της Google
Πρόσθεσέ το στην GoogleΜετά και τη θετική γνωμοδότηση του Τοπικού Συμβουλίου της Αγίας Παρασκευής
Προκλήθηκαν φθορές και σε Beach bar
Εξετάζεται εμπλοκή τους σε κλοπές προϊόντων αξίας 12.000 ευρώ